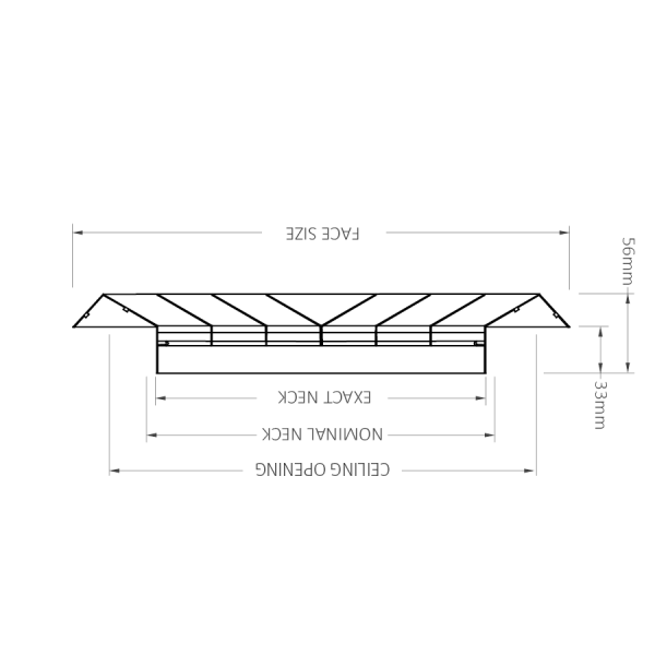
| PRODUCT CODE | NOMINAL NECK (mm) | EXACT NECK (mm) | CEILING OPENING (mm) | FACE SIZE X_and_Y (mm) | PIECES/ CARTON |
|---|---|---|---|---|---|
| BED4189 | 450 x 225 | 445 x 220 | 470 x 245 | 565 x 340 | 10 |
Customise & Add To
Your Quote Request List
You must be logged in to view product options
Product Information
Description
For supply air, multi-core pattern design with quick release core and suitable for heating and cooling. Available in a range of different core patterns and sizes giving total flexibility for all surface mounting applications while providing anti-smudge protection for the ceiling.
Specification
Bevelled Edge Diffuser shall be QAE Model BED multi core pattern design of extruded aluminium construction with quick release core as per QAE literature. Diffusers shall be a powder coat finish. Diffusers shall be fitted with accessories where required by QAE.
